伦敦 2区・【Aspen】奥斯朋港湾

位于Canary Wharf的Aspen,正所谓伦敦天际线的独特之处,Aspen更拥有着王冠上的明珠现代建筑之美誉,由屡获殊荣的建筑师Pilbrow&Partners所设计打造而成,曲线形的凹凸轮廓凸显了整体建筑的细长感,立面阴影的细微变化更是为建筑物增添了独特的优雅及流畅感。 65层楼高的Aspen为住户提供迷人的360度全景视觉飨宴,一览金丝雀码头的绝美景致,西面伦敦市老金融城,东面格林威治半岛,北面奥林匹克公园以及南面历史悠久的格林威治海事。此外,Aspen的室内空间由世界著名的Hirsch Bedner Associates设计,既现代又优雅。整个区域将住宅与酒店、咖啡馆、景观美化及社区空间交织在一起,完美呈现经典伦敦的优雅及魅力。

Aspen享有首都的壮丽景色,由伦敦第一大私营开发商Far East Consortium开发,附近设有多个餐厅、酒吧、咖啡馆和百货公司,步行9分钟即可到达Canary Wharf地铁站,享受地铁交通二区的便利。

金丝雀码头前身是1802年建立的西印度码头,曾是世界上最繁忙的港口之一,位于英国伦敦市中心往东3公里处的道格斯岛北部,占地28.7公顷,为英国继伦敦金融城后新兴的中央商务区,现已发展成为欧洲乃至全球著名的商贸中心,数栋英国最高的建筑物座落于此,其中包括曾为全英第一高楼的加拿大广场一号,根据2011年人口普查资料,在2011年此区人口为12,500,华人占9.7% 。汇集了世界顶级投行和金融机构:汇丰、花旗、巴克莱、摩根大通、瑞士信贷等,每天有超过10万人在这里工作。金丝雀码头生活便利,出租方便,金丝雀码头作为伦敦新金融城所在地,是伦敦摩天大楼指数最高、现代感最强的区域,因为金丝雀码头的崛起,伦敦金融中心也正在逐渐东移。

项目概述

■ 售价:
  • 套房:£554,500起 (42.08平方米) 
  • 1房:£720,000起 (54.63平方米) 
  • 2房:£842,000起 (79.15平方米) 
  • 3房:£1,330,000起 ( 96.06平方米)
■ 家具:选配(3,600镑 - 8,800镑) ■ 产权:999年租赁产权 ■ 完工:2023年第四季度完工

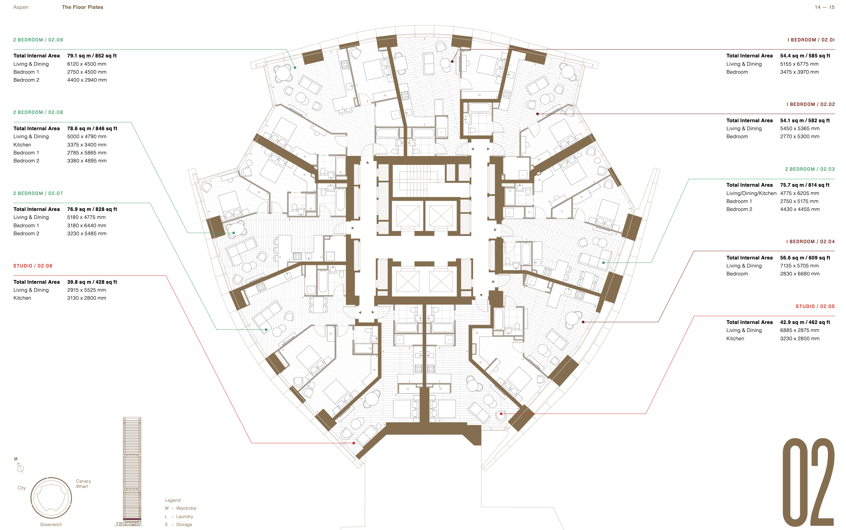
户型推荐

■ 房型:套房 ■ 售价:554,500英镑起 ■ 总面积:453平方英尺 / 42.08平方米面东南,金丝雀码头及格林威治 ■ 房型:一房一厅 ■ 售价:720,000英镑起 ■ 总面积:588平方英尺 / 54.63平方米面东北,金丝雀码头 ■ 房型:二房一厅 ■ 售价:842,000英镑起 ■ 总面积:852平方英尺 / 79.15平方米面西北,伦敦市中心 ■ 房型:三房一厅 ■ 售价:1,330,000英镑起 ■ 总面积:1034平方英尺 / 96.06平方米面东北,金丝雀码头

教育资源丰富

项目周边教育资源丰富,世界顶尖学府林立,仅14分钟地铁车程即达King’s College,18分钟可达Imperial College London。此外,附近亦汇聚了幼稚园,多所小学以及大学,其中轻轨约15分钟即到University of Greenwich,约10分钟即到Queen Mary University of London。 从项目出发至各顶尖大学的总用时:
  • 格林威治大学 - 15分钟
  • 玛丽女王大学 - 25分钟
  • 伦敦国王学院 - 34分钟
  • 伦敦大学学院 - 36分钟
  • 伦敦政经学院 - 39分钟
  • 帝国理工学院 - 42分钟

高品质公共设施

  • 24小时礼宾服务
  • 影音中心 / 健身房 / 蒸气室和桑拿
  • 儿童游乐区 / 私人休息室
  • 公共冬季花园和露台

位置与交通

  • Canary Wharf Station:步行9分钟
  • Dockland Light Railway:开车4分钟
  • Tower of London:地铁37分钟
  • China Town:地铁36分钟
  • London city airport:地铁30分钟
  • Elizabeth line:步行15分钟

购买流程

  • 下定时支付2,000英镑定金
  • 30天内交换合约,支付房价5%加律师费
  • 换约之后6、12、18个月各支付房价5%工程款
  • 预计2023年Q4完工,交付尾款及印花税
  • 专业人员现场验屋,交付钥匙
  • 交屋后预计6 – 9 个月产权登记完成

联系我们

让我们协助您了解更多资讯与具体流程