伦敦3区・【Kidbrooke Village 】布鲁克庄园

伦敦买房 英国买房 伦敦置业 kidbrooke Village Kidbrooke Village布鲁克庄园位于格林威治区(Royal Borough of Greenwich),是伦敦最重要的全新住宅区之一;项目在皇家格林威治自治区,属于伦敦的新皇家自治市的一部分。2012年起,格林威治成功列入了世界遗产。作为伦敦的第四个皇家自治区,格林威治因具有皇家天文台、格林威治宫公园、国家海洋博物馆和本初子午线等著名景点,每年都吸引着全球的游客到访,升值潜力颇高. 格林威治区与伦敦市联合投资十亿英镑,将Ferrier Estate所占用的土地改造为全新社区。除兴建公园、临时住客中心、广场及商铺外,开发商迄今已在布鲁克庄园建成逾1,000个新住宅单位,是一个既安全又可持续发展的现代化社区,是伦敦最受欢迎的地区之一。该重建工程至今已创造逾12,400个新职位。 精心设计的开放式客厅光线充沛,予人简洁、时尚之感。客厅、走廊及厨房铺有复合木地板,营造连贯感强烈。豪华厨房采用个性化设计,配备各式家电组合。单位更附设宽敞阳台或露台,可观赏周围壮丽景色。​

项目概述

■ 售价:460,000 - 652,500英镑 ■ 类型:1-2房豪华公寓 ■ 室内面积:50 – 80.3平方米(538.2 – 864.3平方尺) ■ 产权:999年租赁产权 ■ 完工:预计2024年第二季度 – 2025年第三季度完工 伦敦买房 英国买房 伦敦置业 kidbrooke Village 伦敦买房 英国买房 伦敦置业 kidbrooke Village

户型推荐

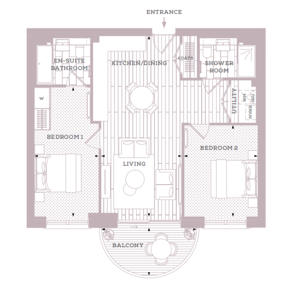
伦敦买房 英国买房 伦敦置业 kidbrooke Village ■ 房型:1房1卫 ■ 面积:557平方尺 / 51.8平方米 ■ 东北朝向,1-10楼 伦敦买房 英国买房 伦敦置业 kidbrooke Village ■ 房型:2房2卫 ■ 面积:794平方尺 / 73.8平方米 ■ 西南朝向,1-10楼

教育

伦敦买房 英国买房 伦敦置业 kidbrooke Village 皇家格林威治是优质的学区,项目周边有超过 40 所评级杰出及优秀的中小学,世界知名的格林威治大学、坦普尔学院、 国王学院和伦敦金史密斯大学均近在咫尺,学风鼎盛。社区内就有两所小学:温菲尔德小学(Wingfield Primary School)和 天主教家庭学校(Holy Family Catholic School),家长们可以直接步行送孩子上学,十分方便。 ■ Brooklands Primary School - 车程 11 分钟 ■ John Ball Primary School - 车程 10 分钟 ■ All Saint’s Church of England Primary School  - 车程 11 分钟 ■ Heath House Preparatory School - 车程 8 分钟 ■ Blackheath preparatory School - 车程 8 分钟

设施

现代奢华庄园,湖畔绿地围绕,高品质生态环境共存区,绿地开放的空间占其总面积的一半以上。社区内有健身房、游泳池、超市、咖啡厅、药局及医疗中心,提供社区住户高品质生活。 伦敦买房 英国买房 伦敦置业 kidbrooke Village 伦敦买房 英国买房 伦敦置业 kidbrooke Village

交通

伦敦买房 英国买房 伦敦置业 kidbrooke Village 区域交通便利、地理位置独特,步行2分钟可到达最近车站,附近巴士路線頻密,居民前往格林威治、倫敦東南部及O2體育館均非常便捷。 ■ 伦敦桥 - 地铁 15 分钟 ■ 金丝雀码头 - 地铁 22 分钟 ■ 查令十字车站 - 地铁 23 分钟 ■ 维多利亚车站 - 地铁 25 分钟 ■ 伦敦老金融城 - 地铁 30 分钟

购买流程

  •  房价75万以下支付2,000英镑定金,75万以上则支付5,000英镑定金
  •  30天内交换合约,支付房价10%及律师费
  •  换约6个月后支付10%工程款
  •  换约12个月后支付10%工程款
  •  2024年Q2 – 2025年Q3完工后,支付70%尾款及印花税
  •  专业人员现场验屋,交付钥匙。交屋后预计6 - 9 个月产权登记完成

联系我们

让我们协助您了解更多资讯与具体流程