伦敦近郊 · 【Trent Park】特伦特庄园

Trent Park 是一个非常特别并且独具意义的大型庄园,由英国顶级开发商伯克利倾力打造,整个项目规划为带有英伦风的别墅,仿造当时的华丽传统建筑,项目座落于 413 英亩的公园绿地,环境优美清净犹如世外桃源。这里富含历史底蕴,其中 Mansion House 是英国二级保护建筑,前屋主是英国的社会名流 Philip Sassoon 爵士,许多著名人物都曾为他的座上宾,包括丘吉尔、张伯伦、卓别林和辛普森夫人等。1939 年被英国陆军征用,成为 MI6 军情六处,作为窃听德国军官及高级官员的基地,窃听团队也在此揭露了有关希特勒的军事战术秘密情报,间接改变了二战的发展轨迹。 Trent Park 位于一片绿野之中,堪称城郊田园的典范,这里仿佛伦敦北部的”唐顿庄园”,整个项目占地 56 英亩,美丽又神秘的 Trent Park 曾为英国皇室成员的狩猎地,也是伦敦历史最悠久的公园之一。这里一年四季都有令人惊艳的英国乡村风景,能提供孩子最佳的成长环境,享受丰富的户外生活不需要远行,家门口就有满满的自然元素。

项目概述

■ 售价:799,000 - 2,415,000英镑 ■ 类型:2房公寓、 3-5房别墅 ■ 室内面积:82 – 222平方米(886 – 2,389平方英尺) ■ 产权:永久产权 ■ 完工:预计2023年第二季度完工

户型推荐

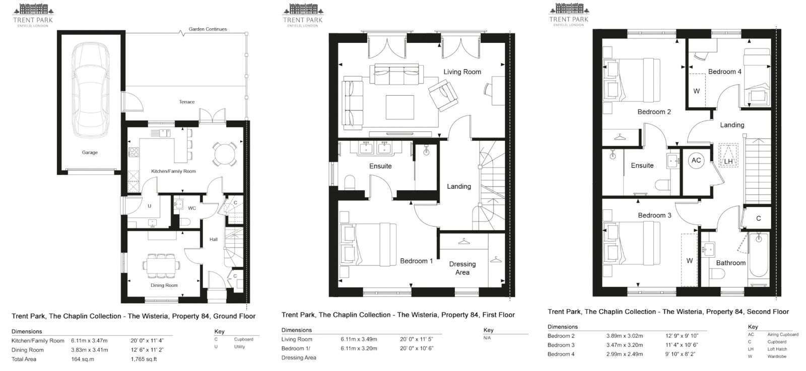
■ 房型:四房三厅四卫别墅 ■ 售价:1,543,000英镑 ■ 总面积:1765平方英尺 /164平方米 ■ 南北通透

顶尖教育资源

特伦特庄园处于非常优质的学区地带,项目附近的学校教育质量在英国名列前茅,在项目 5 英里范围,可以到达 69 所幼儿园、47 间评级为优秀的小学,21 间优秀的中学和 17 间私校。 搭乘地铁也能快速便捷地到达伦敦大学学院、伦敦政经学院、伦敦大学国王学院和伦敦帝国理工学院等,还有位于 King’s Cross 附近的中央圣马丁艺术学院。 ■ Southgate School State - 开车8 分钟 ■ Salcombe Preparatory School Independent - 开车 6 分钟 ■ Vita Ed Pax School Independent - 开车 7 分钟 ■ East Barnet School Academy - 开车 10 分钟 Ashmole Academy Academy - 开车 11 分钟 ■ Palmers Green High School Independent - 开车 11 分钟 ■ Dwight School London- 开车 12 分钟 ■ The Latymer School Grammar - 开车 16 分钟 ■ Mount House School Independent - 开车 16 分钟 ■ St John’s Senior School Independent - 开车 17 分钟

高品质公共设施

花园景观健身室 户外泳池 网球场 接驳车

位置与交通

Trent Park 位于伦敦北部,距离项目最近的 Oakwood 和 Cockfosters 地铁站位于 Piccadilly 线上,搭乘地铁 26 分钟即可抵达伦敦的交通枢纽 - 国王十字车站,距离市中心邦德街也只需要 36 分钟。另外,社区内也提供定时接驳巴士至地铁站,让居民能更加便利。开车出行的话 M1 和 M25 高速公路也在附近,35 分钟车程即可到达希思罗机场或金丝雀码头金融城。
  • King’s Cross  -  地铁26 分钟
  • Victoria 地铁站 -  地铁 35 分钟
  • 邦德街 - 地铁 36 分钟
  • Westfield 购物中心 - 地铁 43 分钟
  • Luton 国际机场 - 开车 28 分钟
  • 希思罗国际机场 - 开车 35 分钟

购买流程

  • 下定时支付5,000英镑定金
  • 21天內交换合约,支付房价10%
  • 交换合约6个月后支付房价10%作为担保
  • 预计2023年Q2完工,交付尾款及印花税
  • 专业人员现场验屋,交付钥匙。交屋后预计6 - 9 个月产权登记完成

联系我们

让我们协助您了解更多资讯与具体流程